Three Mile Beach

A luxury holiday destination in Cornwall.

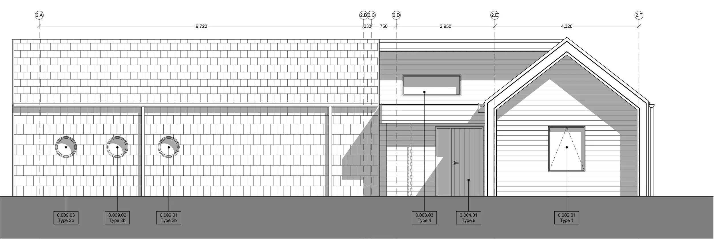
Three Mile Beach, consists of seventeen holiday chalets nestled between the sand dunes of Three Mile Beach, near St.Ives, Cornwall. Each Chalet was detailed with energy efficiency in mind. Constructed out a super energy efficient timber frame. The foundations were poured into an insulated formwork which saved the budget on expensive excavations.

Next
Next

Extension in Dorset