Other Projects

A selection of recently completed projects and ones in differing stages of development.

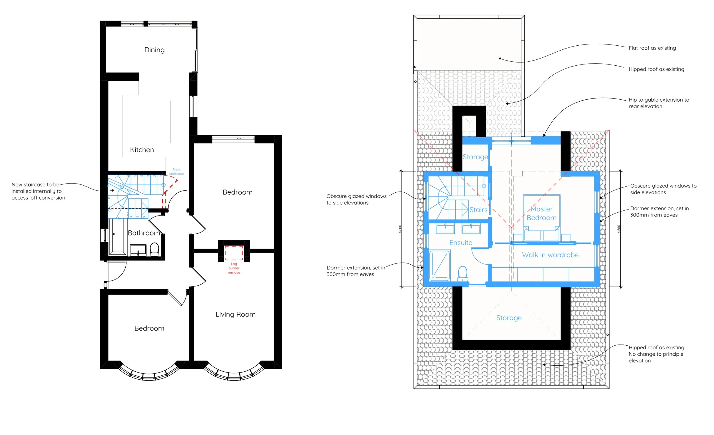
Whether you are planning a small internal change, loft conversion or rear extension, no job is to big or small. Below is a selection of projects completed from whole new build houses to external alterations.

Previous
Previous

Self-Build Passive House

Next
Next

Low Energy House Stroud